Baltorpvej 170, 3. tv., Nordlyset, 2750 Ballerup
Lejlighed
88 m2
13.950 kr./md
Else Alfelts Vej 44, st.. 24., Midgaard, 2300 København S
34 m2
8.995 kr./md
Kolding Åpark 24, 17. 1701., 6000 Kolding
159 m2
15.400 kr./md
Teglholmens Østkaj 63, 4. th., Teglværkskajen, 2450 København SV
102 m2
20.500 kr./md
Else Alfelts Vej 44, 3. 4., Midgaard, 2300 København S
9.395 kr./md
Teglholmens Østkaj 39, 5. th., Teglværkskajen, 2450 København SV
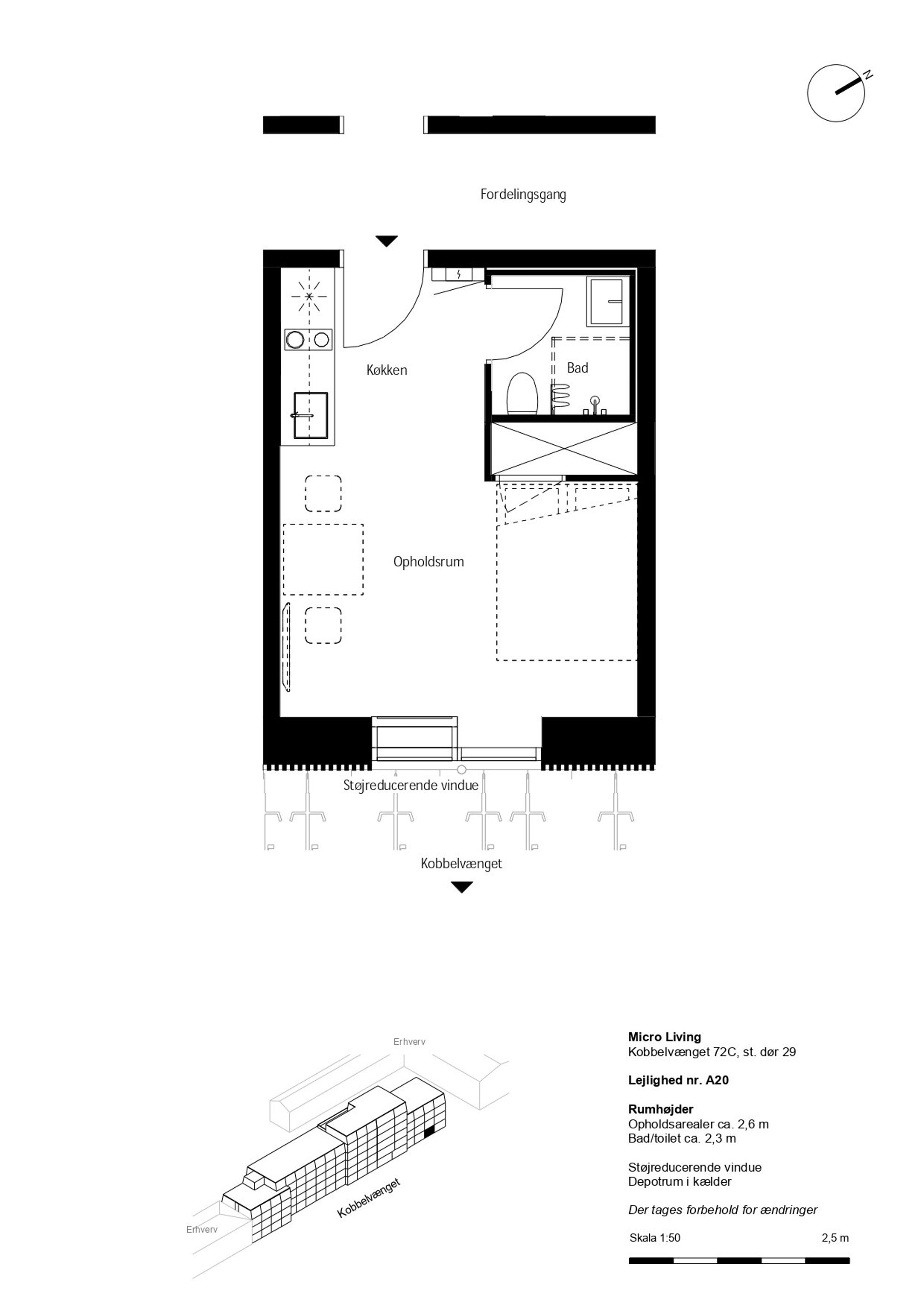
Kobbelvænget 72C, st.. 29., Kobbelvænget, 2700 Brønshøj
31 m2
8.700 kr./md
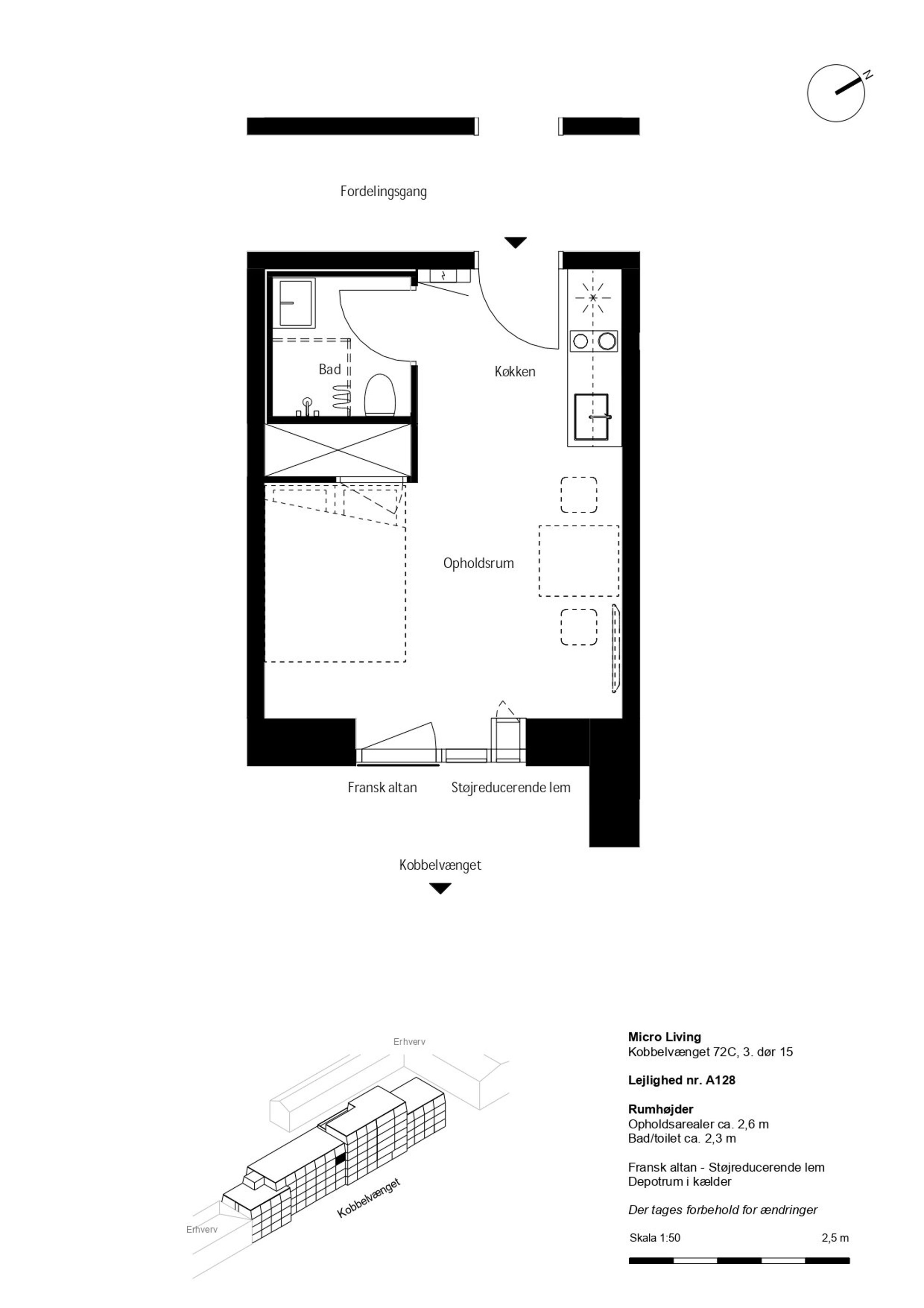
Kobbelvænget 72C, 3. 15., Kobbelvænget, 2700 Brønshøj
8.800 kr./md
Spættevangen 8, 2. tv., Spættehaven, 2635 Ishøj
82 m2
13.200 kr./md
Elstarvej 24, 6. 7., Akeleje Hus, 2500 Valby
47 m2
11.900 kr./md
Elstarvej 24, 1. 1., Akeleje Hus, 2500 Valby
35 m2
9.500 kr./md
Göteborg Plads 11, 3. tv., Provianthuset, 2150 Nordhavn
108 m2
27.100 kr./md